Многофункциональное здание вспомогательного назначения

Многофункциональное здание вспомогательного назначения
Многофункциональное здание вспомогательного назначения
Многофункциональное здание вспомогательного назначения
Многофункциональное здание вспомогательного назначения
Многофункциональное здание вспомогательного назначения
Многофункциональное здание вспомогательного назначения
Многофункциональное здание вспомогательного назначения

Многофункционально здание вспомогательного назначения с применением энергоэффективных технологий. Московская область. Красногорский район.

 

•        Строительный объем – 854 м3

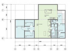
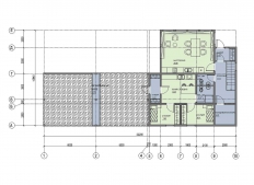
•        Площадь застройки – 178 м2

•        Площадь общая – 225 м2

•        Площадь отапливаемых помещений (жилых, подсобных и дополнительных) – 209.86 м2

 

Земельный участок, на котором планируется строительство, находится в частной собственности; имеет многоугольную в плане форму и граничит с соседними участками – с южной и восточной сторон, с проездами - с северной, западной и северо-восточной сторон. На участке расположены двухэтажный жилой дом, беседка-барбекю, выполнено благоустройство и озеленение. Место размещения проектируемого здания - в северо-восточной части участка.

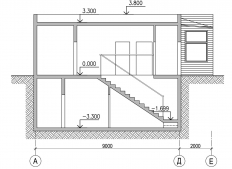
Объемно-планировочное решение здания определено назначением и взаимосвязью располагаемых в нем помещений. Здание запроектировано отдельно стоящим, с одним надземным и одним подвальным этажами.

Функциональное зонирование предполагает размещение на первом этаже зоны творческой мастерской и зоны персонала в основном отапливаемом объеме, а также неотапливаемого гаража на четыре автомобиля, в подвальном этаже – зоны отдыха и спа (домашний кинотеатр, бильярдная, парная), а также кладовых, постирочной и технического помещения. Каждая из зон первого этажа имеет отдельный вход. Основная часть подвального этажа имеет свободную планировку, выход непосредственно наружу осуществляется по двухмаршевой поворотной лестнице, отделенной от прочих помещений.

 

Непрерывность изолирующей оболочки здания из высокоэффективных теплоизоляционных материалов, отсутствие мостов холода, герметичность являются обязательными условиями.

 

Наружные окна и двери отапливаемой части здания – энергоэффективные, окна - ПВХ или дерево-алюминиевые, тройной/четверной стеклопакет, возможно, с аргоновым наполнением в камерах, с сопротивлением теплопередаче не менее 1,2 м2х°С/Вт.